Hala produkcyjno-magazynowa z biurami na Teofilowie 6110 m || Teo Park Wersalska ZOBACZ

Klimatyzowany lokal biurowy Łódź, Bałuty ul. Łagiewnicka || Biurowiec BCB ZOBACZ

M/S Factory Łódź || Hala produkcyjno-magazynowa z biurami 7785 m² w centrum Łodzi ZOBACZ

Szukaj
Zadzwoń do nas +48 534 580 003
Biuro

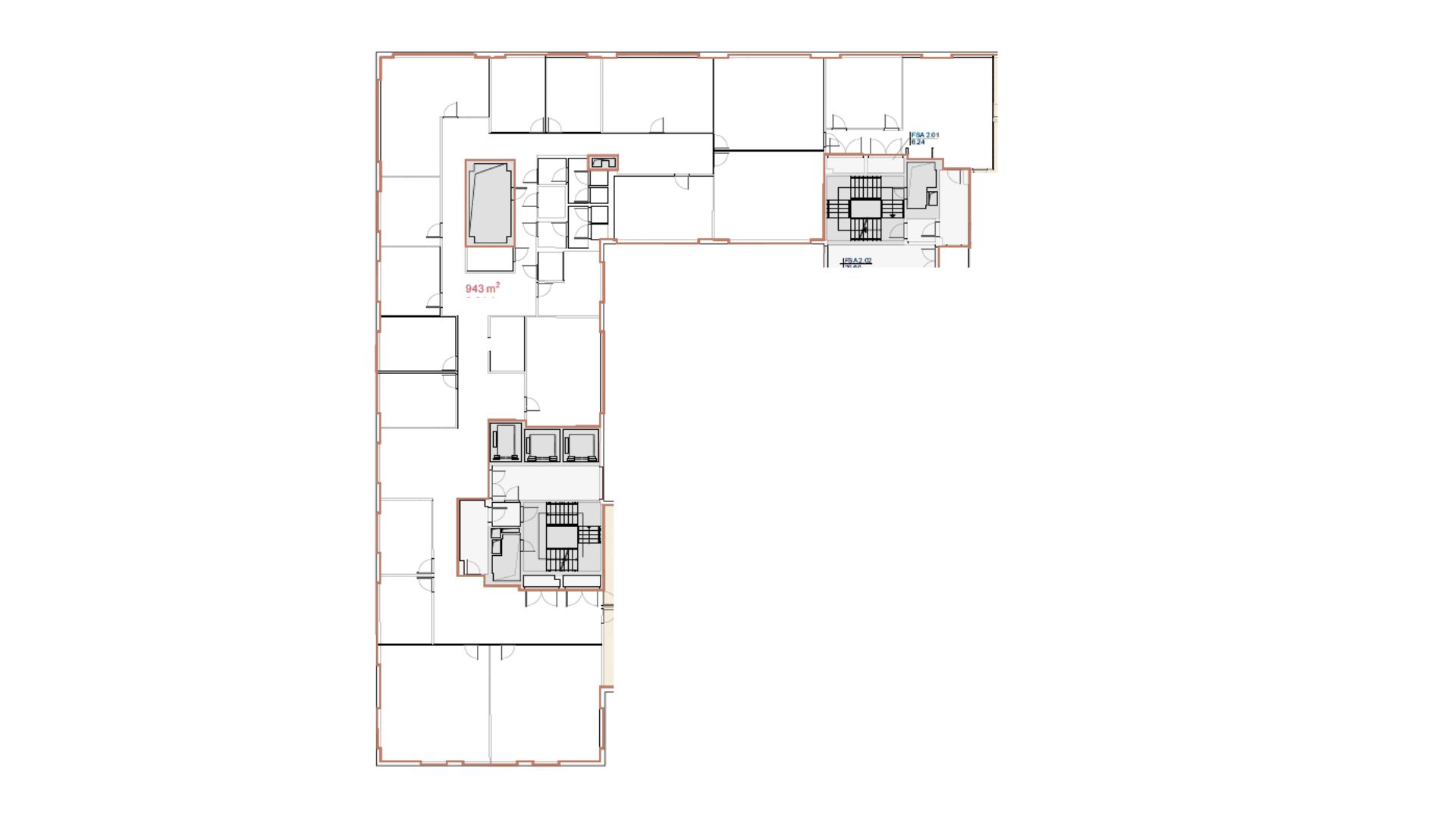
Moduł biurowy 943 m² w nowoczesnym biurowcu, Warszawa Mokotów

W nieruchomości:

MP2 Marynarska Point 2 - biura Warszawa MP2 Marynarska Point 2 - biura Warszawa

Powierzchnia: 943 m²

Cena za m²: 13,50 €

Zobacz rzut Pobierz ofertę

Idealne biuro dla Twojej firmy – 943 m² powierzchni gotowej do pracy

Oferujemy wynajem modułu biurowego o powierzchni 943 m², mieszczącego się w nowoczesnym biurowcu na Mokotowie – jednej z najbardziej dynamicznych dzielnic biznesowych Warszawy.

Powierzchnia dostępna od zaraz – gotowa do wprowadzenia się i rozpoczęcia działalności. Biuro usytuowane jest na 2. piętrze, dzięki czemu wnętrza są doskonale doświetlone naturalnym światłem, a pracownicy mogą cieszyć się komfortowymi warunkami pracy. Istnieje możliwość dowolnej aranżacji przestrzeni, a także zwiększenia lub pomniejszenia powierzchni.

Aktualna aranżacja obejmuje:
- szereg biur i gabinetów o różnej wielkości,
- korytarze i ciągi komunikacyjne zapewniające wygodny dostęp do wszystkich stref,
- pomieszczenia techniczne i socjalne,
- toalety

Moduł łączy w sobie zalety przestrzeni open space z funkcjonalnością zamkniętych gabinetów, co sprzyja efektywnej pracy zespołowej i spotkaniom biznesowym.

Lokalizacja i komunikacja:
- liczne przystanki autobusowe i tramwajowe w pobliżu budynku,
- szybki dojazd do centrum Warszawy,
- bliskość Lotniska Chopina,
- w okolicy restauracje, kawiarnie i centra handlowe,
- pełna infrastruktura dla pracowników: przedszkola, hotele, kluby fitness.

Udogodnienia w budynku:
- klimatyzacja, podnoszone podłogi i podwieszane sufity,
- całodobowa ochrona, recepcja i system kontroli dostępu,
- szybkie windy i miejsca parkingowe w garażu podziemnym,
- udogodnienia dla rowerzystów, sklepy convenience i przestrzenie coworkingowe,
- nowoczesne pomieszczenia serwerowe.

Warunki najmu: 13,5 €/m² + service charge 27,10 zł/m²

Ten moduł biurowy o powierzchni 943 m² to idealna propozycja dla firm poszukujących nowoczesności i funkcjonalności w jednej lokalizacji.

Oferta ma charakter informacyjny i nie stanowi oferty w rozumieniu przepisów kodeksu cywilnego.

Masz pytania? Zapraszamy do kontaktu!

Aleksandra Affek

Property manager

tel: 609 703 099

a.affek@aia.pl

Wiktoria Wieczorek

Assistant Property Manager

tel: 530 177 256

w.wieczorek@aia.pl

Małgorzata Zakrzewska

Recepcja

tel: 531912759

m.zakrzewska@aia.pl


    MP2 Marynarska Point 2 - biura Warszawa

    Lokal znajduje się w:

    MP2 Marynarska Point 2 - biura Warszawa

    Warszawa, Postępu 15C

    Informacje o budynku

    Szybkie zapytanie

      Inne lokale w tej nieruchomości:

      WYRÓŻNIONA OFERTA

      Funkcjonalne biuro i open space na 4. piętrze – Marynarska Point 2 MP2 Marynarska Point 2 - biura Warszawa
      Warszawa, Postępu 15C

      Do wynajęcia oferowana jest nowoczesna powierzchnia biurowa o wielkości około 345 m², zlokalizowana w prestiżowym budynku Marynarska Point 2 przy ul. Postępu 15C, w biznesowym centrum warszawskiego Mokotowa.

      Powierzchnia: 345 m²
      Stawka za czynsz: 13,50 €/m²
      WYRÓŻNIONA OFERTA

      Biuro 701 m² do wynajęcia Mokotów MP2 Marynarska Point 2 - biura Warszawa
      Warszawa, Postępu 15C

      Biuro 701 m² do wynajęcia – Marynarska Point 2, Mokotów, Warszawa Na wynajem dostępna jest przestronna powierzchnia biurowa o metrażu […]

      Powierzchnia: 701 m²
      Stawka za czynsz: 12,50 €/m²
      WYRÓŻNIONA OFERTA

      Warszawa Mokotów – lokal biurowo-usługowy 448 m² MP2 Marynarska Point 2 - biura Warszawa
      Warszawa, Postępu 15C

      Do wynajęcia przestronny lokal biurowo-usługowy o powierzchni ok. 448,6 m², zlokalizowany na Mokotowie – w jednej z najbardziej rozpoznawalnych dzielnic biznesowych Warszawy.

      Powierzchnia: 448 m²
      Stawka za czynsz: 12,50 €/m²
      WYRÓŻNIONA OFERTA

      Wysoki standard, świetna lokalizacja – biuro 536 m² do wynajęcia MP2 Marynarska Point 2 - biura Warszawa
      Warszawa, Postępu 15C

      Oferujemy atrakcyjną powierzchnię biurową do wynajęcia w nowoczesnym kompleksie Marynarska Point 2, zlokalizowanym w biznesowej części Mokotowa przy ul. Postępu. Dostępny lokal o powierzchni 536,1 m² stanowi doskonałą propozycję dla firm poszukujących funkcjonalnej i komfortowej przestrzeni do pracy.

      Powierzchnia: 536 m²
      Stawka za czynsz: 12,50 €/m²
      WYRÓŻNIONA OFERTA

      Powierzchnia biurowa w MP2, Warszawa Mokotów MP2 Marynarska Point 2 - biura Warszawa
      Warszawa, Postępu 15C

      Do wynajęcia – powierzchnia biurowa w Marynarska Point 2, Warszawa Mokotów Oferujemy do wynajęcia nowoczesną powierzchnię biurową w prestiżowym biurowcu […]

      Powierzchnia: 1572 m²
      Stawka za czynsz: 12,50 €/m²
      WYRÓŻNIONA OFERTA

      Lokal gastronomiczny 272 m², parter Marynarska Point 2 MP2 Marynarska Point 2 - biura Warszawa
      Warszawa, Postępu 15C

      Do wynajęcia – lokal gastronomiczny 272 m², parter Marynarska Point 2, Warszawa Mokotów Oferujemy do wynajęcia lokal gastronomiczny o powierzchni […]

      Powierzchnia: 272 m²
      Stawka za czynsz: 20 €/m²
      WYRÓŻNIONA OFERTA

      Biuro 1003 m² do wynajęcia w biurowcu klasy A – Marynarska Point 2, Mokotów MP2 Marynarska Point 2 - biura Warszawa
      Warszawa, Postępu 15C

      Oferujemy na wynajem przestronną i funkcjonalną powierzchnię biurową o metrażu 1003,8 m², zlokalizowaną w prestiżowym budynku Marynarska Point 2, w biznesowym centrum Mokotowa przy ul. Postępu 15C.

      Powierzchnia: 1003 m²
      Stawka za czynsz: 14,50 €/m²
      WYRÓŻNIONA OFERTA

      Do wynajęcie biuro 505 m², wysoki standard, 8 piętro – Mokotów, Postępu 15C MP2 Marynarska Point 2 - biura Warszawa
      Warszawa, Postępu 15C

      Proponujemy wynajem funkcjonalnej i wygodnej powierzchni biurowej o metrażu 505,7 m².

      Powierzchnia: 505 m²
      Stawka za czynsz: 14,50 €/m²
      WYRÓŻNIONA OFERTA

      Prestiżowe biuro 551 m² Warszawa Mokotów MP2 Marynarska Point 2 - biura Warszawa
      Warszawa, Postępu 15C

      Do wynajęcia – biuro 551 m² w Marynarska Point 2, Warszawa Mokotów Oferujemy do wynajęcia ustawną powierzchnię biurową 551 m² […]

      Powierzchnia: 551 m²
      Stawka za czynsz: 12,50 €/m²

      Biuro do wynajęcia w Marynarska Point 2 – 117 m² Mokotów MP2 Marynarska Point 2 - biura Warszawa
      Warszawa, Postępu 15C

      Na wynajem oferujemy przestronny moduł biurowy o powierzchni 117 m², zlokalizowany na parterze nowoczesnego biurowca klasy A w sercu Mokotowa. To doskonała propozycja dla firm szukających reprezentacyjnej siedziby w Warszawie – idealna przestrzeń dla biur, firm doradczych i zespołów projektowych.

      Powierzchnia: 117 m²
      Stawka za czynsz: 25 €/m²

      Biuro do wynajęcia Mokotów 1 088 m² MP2 Marynarska Point 2 - biura Warszawa
      Warszawa, Postępu 15C

      Na wynajem oferujemy przestronny moduł biurowy o powierzchni 1 088 m², zlokalizowany na 2. piętrze nowoczesnego biurowca klasy A w sercu Mokotowa. To doskonała propozycja dla firm szukających reprezentacyjnej siedziby w Warszawie – idealna przestrzeń dla biur, firm doradczych i zespołów projektowych.

      Powierzchnia: 1088 m²
      Stawka za czynsz: 13,50 €/m²

      MP2 – na wynajem moduł gabinetowy o powierzchni 1028 m² MP2 Marynarska Point 2 - biura Warszawa
      Warszawa, Postępu 15C

      Na wynajem oferujemy przestronny moduł biurowy o powierzchni 1 028 m², zlokalizowany na 2. piętrze nowoczesnego biurowca klasy A w sercu Mokotowa. To doskonała propozycja dla firm szukających reprezentacyjnej siedziby w Warszawie – idealna przestrzeń dla biur, firm doradczych i zespołów projektowych.

      Powierzchnia: 1028 m²
      Stawka za czynsz: 13,50 €/m²

      Biuro na wynajem 144 m² – 2. piętro Mokotów MP2 Marynarska Point 2 - biura Warszawa
      Warszawa, Postępu 15C

      Biuro na wynajem 144 m² – 2. piętro – nowoczesna powierzchnia biurowa z dostępem do części socjalnej Oferujemy do wynajęcia […]

      Powierzchnia: 144 m²
      Stawka za czynsz: 14,50 €/m²

      Nowoczesne biuro 309 m² do wynajęcia – Warszawa Mokotów, MP2 MP2 Marynarska Point 2 - biura Warszawa
      Warszawa, Postępu 15C

      Biuro 309 m² w centrum biznesowego Mokotowa Prestiżowa lokalizacja – centrum biznesowego Mokotowa Marynarska Point 2 to biurowiec położony w […]

      Powierzchnia: 309 m²
      Stawka za czynsz: 14,50 €/m²

      Jasne i przestronne biura na wynajem – 341 m², MP2 MP2 Marynarska Point 2 - biura Warszawa
      Warszawa, Postępu 15C

      Na wynajem oferujemy nowoczesną powierzchnię biurową o powierzchni 433 m², zlokalizowaną na 1. piętrze prestiżowego biurowca klasy A – Marynarska Point 2 przy ul. Postępu 15C. To idealne miejsce dla firm poszukujących biura w Warszawie Mokotowie w reprezentacyjnej części stolicy, doskonałej do działalności biurowej, doradczej lub usługowej.

      Powierzchnia: 341 m²
      Stawka za czynsz: 14,50 €/m²

      Biura na Mokotowie – moduł z układem gabinetowym MP2 Marynarska Point 2 - biura Warszawa
      Warszawa, Postępu 15C

      Biuro do wynajęcia 459 m² – Warszawa Mokotów, Marynarska Point 2 Na wynajem dostępna jest powierzchnia biurowa w Warszawie o […]

      Powierzchnia: 459 m²
      Stawka za czynsz: 12,50 €/m²

      Biuro do wynajęcia 798 m² – Warszawa Mokotów MP2 Marynarska Point 2 - biura Warszawa
      Warszawa, Postępu 15C

      Biuro do wynajęcia 798 m² – Warszawa Mokotów, Marynarska Point 2 Na wynajem dostępna jest komfortowa i funkcjonalna powierzchnia biurowa […]

      Powierzchnia: 798 m²
      Stawka za czynsz: 12,50 €/m²

      Doskonale doświetlone biura, Warszawa Mokotów MP2 Marynarska Point 2 - biura Warszawa
      Warszawa, Postępu 15C

      Na wynajem dostępna jest nowoczesna powierzchnia biurowa w Warszawie o metrażu 473 m², zlokalizowana na 2. piętrze budynku Marynarska Point 2 przy ul. Postępu 15C – w samym centrum biznesowego Mokotowa.

      Powierzchnia: 473 m²
      Stawka za czynsz: 13,50 €/m²

      Prestiżowa lokalizacja w Warszawie – idealny dojazd i infrastruktura MP2 Marynarska Point 2 - biura Warszawa
      Warszawa, Postępu 15C

      Do wynajęcia nowoczesna powierzchnia biurowa o powierzchni 66 m², położona na 2. piętrze prestiżowego budynku Marynarska Point 2 przy ul. Postępu 15C, w samym sercu biznesowego Mokotowa w Warszawie.

      Powierzchnia: 266 m²
      Stawka za czynsz: 14,50 €/m²

      Biuro 202 m² na wynajem – 2. piętro Warszawa MP2 Marynarska Point 2 - biura Warszawa
      Warszawa, Postępu 15C

      Biuro 202 m² na wynajem – 2. piętro – Marynarska Point 2, Mokotów Dostępna do wynajęcia nowoczesna powierzchnia biurowa o […]

      Powierzchnia: 202 m²
      Stawka za czynsz: 14,50 €/m²

      Biuro 95 m² na wynajem – 2. piętro – 3 niezależne gabinety MP2 Marynarska Point 2 - biura Warszawa
      Warszawa, Postępu 15C

      Szukasz przestrzeni biurowej w jednej z najlepszych lokalizacji biznesowych w Warszawie? Proponujemy wynajem całego piętra biurowego o powierzchni 1 486 m² w nowoczesnym budynku biurowym na warszawskim Mokotowie. Moduł obejmuje zespół mniejszych pomieszczeń biurowych oraz część socjalną, co zapewnia wygodny układ funkcjonalny dla firm o zróżnicowanej strukturze.

      Powierzchnia: 95 m²
      Stawka za czynsz: 14,49 €/m²

      Do wynajęcia – powierzchnia biurowa na II piętrze nowoczesnego budynku biurowego MP2 MP2 Marynarska Point 2 - biura Warszawa
      Warszawa, Postępu 15C

      Szukasz przestrzeni biurowej w jednej z najlepszych lokalizacji biznesowych w Warszawie? Proponujemy wynajem całego piętra biurowego o powierzchni 1 486 m² w nowoczesnym budynku biurowym na warszawskim Mokotowie. Moduł obejmuje zespół mniejszych pomieszczeń biurowych oraz część socjalną, co zapewnia wygodny układ funkcjonalny dla firm o zróżnicowanej strukturze.

      Powierzchnia: 1574 m²
      Stawka za czynsz: 12,50 €/m²

      Moduł biurowy w sercu biznesowego Mokotowa – 1003 m², MP2 MP2 Marynarska Point 2 - biura Warszawa
      Warszawa, Postępu 15C

      Nowoczesna powierzchnia biurowa w układzie gabinetowym

      Powierzchnia: 1003 m²
      Stawka za czynsz: 13,50 €/m²

      Nowoczesna powierzchnia biurowa 558 m² w MP2 – Mokotów, Warszawa MP2 Marynarska Point 2 - biura Warszawa
      Warszawa, Postępu 15C

      Oferujemy do wynajęcia nowoczesną powierzchnię biurową 558 m² w prestiżowym biurowcu Marynarska Point 2 – w samym centrum biznesowej części Mokotowa, przy ul. Postępu 15C w Warszawie.

      Powierzchnia: 558 m²
      Stawka za czynsz: 13,50 €/m²

      Moduł biurowy 618 m² doskonały dla dużej firmy MP2 Marynarska Point 2 - biura Warszawa
      Warszawa, Postępu 15C

      Oferujemy do wynajęcia nowoczesne biuro 618 m² w prestiżowym biurowcu klasy A Marynarska Point 2, zlokalizowanym w samym sercu dzielnicy biznesowej Mokotów, przy ul. Postępu 15C w Warszawie.

      Powierzchnia: 618 m²
      Stawka za czynsz: 13,50 €/m²

      Komfortowa przestrzeń biurowa dla Twojego zespołu – 414 m², Mokotów MP2 Marynarska Point 2 - biura Warszawa
      Warszawa, Postępu 15C

      Oferujemy do wynajęcia nowoczesne biuro 414 m² w prestiżowym biurowcu klasy A Marynarska Point 2, zlokalizowanym w samym sercu dzielnicy biznesowej Mokotów, przy ul. Postępu 15C w Warszawie.

      Powierzchnia: 414 m²
      Stawka za czynsz: 14,50 €/m²

      Biuro do wynajęcia 533 m² – Mokotów MP2 Marynarska Point 2 - biura Warszawa
      Warszawa, Postępu 15C

      Oferujemy do wynajęcia nowoczesne biuro 533 m² w prestiżowym biurowcu klasy A Marynarska Point 2, zlokalizowanym w samym sercu dzielnicy biznesowej Mokotów, przy ul. Postępu 15C w Warszawie.

      Powierzchnia: 533 m²
      Stawka za czynsz: 13,50 €/m²

      Biuro 1019 m² – centrum Mokotowa MP2 Marynarska Point 2 - biura Warszawa
      Warszawa, Postępu 15C

      Biuro 1019 m² do wynajęcia – 8. piętro Marynarska Point 2, Mokotów Oferujemy do wynajęcia nowoczesne biuro o powierzchni ok. […]

      Powierzchnia: 1019 m²
      Stawka za czynsz: 12,50 €/m²


      Grupa A&A - poznaj nas

      Zadzwoń do nas